永靖县自然资源局关于惠安•华府住宅小区建筑方案设计批前公示

来源:永靖县自然资源局 浏览次数: 发布时间:2025-08-13
字号:
收藏

甘肃惠安房地产开发有限公司向我局申报了惠安•华府住宅小区建筑方案设计,我局按程序先后组织专家评审会进行评审,会后设计单位按专家意见已修改完善,现依据《中华人民共和国城乡规划法》《甘肃省城乡规划条例》《甘肃省建设项目规划许可办法》等相关法律规定,在规划许可之前,将有关情况予以公开公示,接受社会公众监督:

一、项目拟选位置

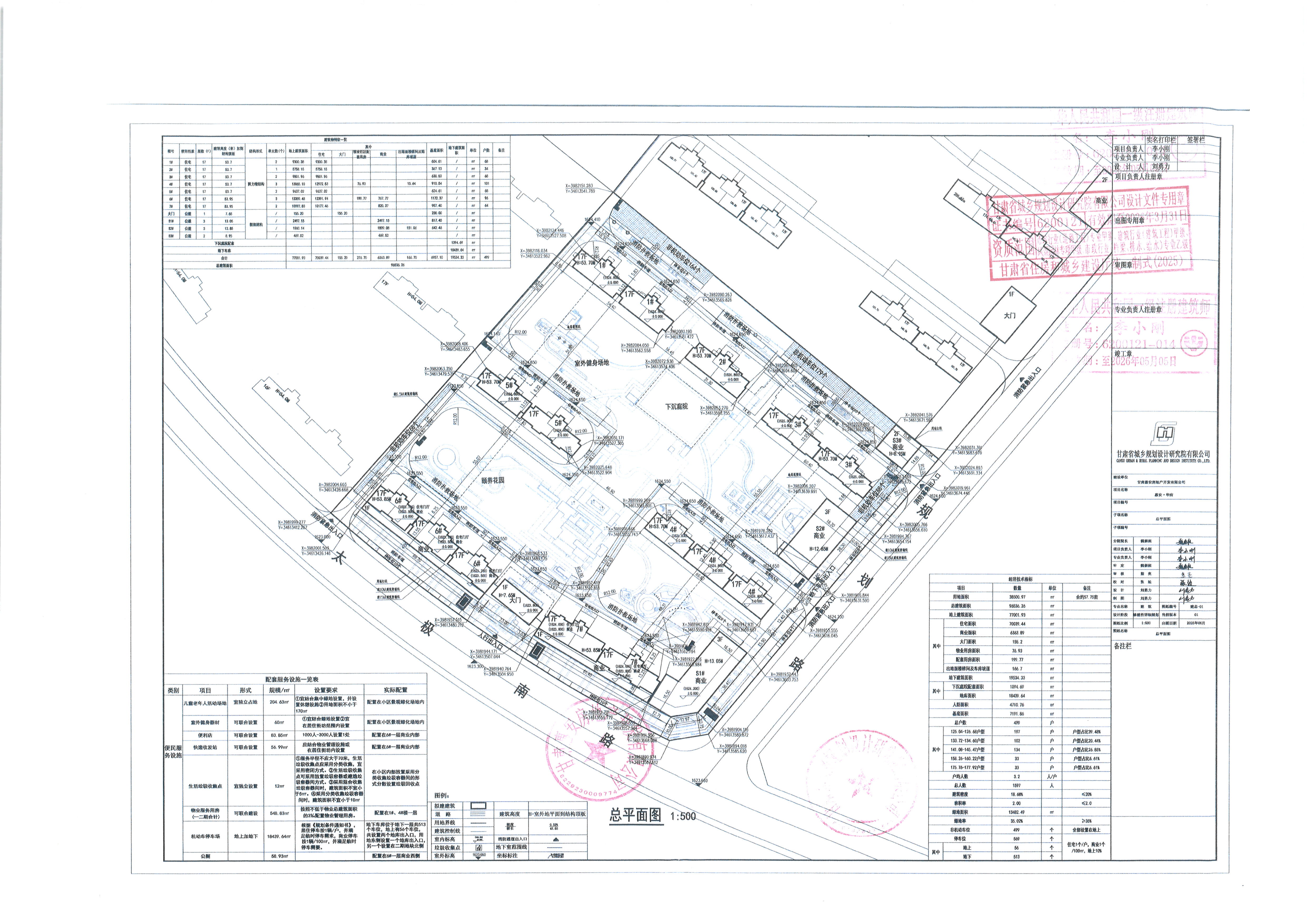
项目位于永靖县太极镇中庄村,东至三峡路、南至太极南路、西至G〔2022〕23号、北至国有储备土地。

二、规划条件

用地性质:二类居住用地,建设用地面积38500.97㎡,容积率≦2.0,建筑密度≦20% ,绿地率≧35%,建筑高度≦60米,机动车位1车位/1户。

三、设计方案中的主要内容及指标:

惠安•华府住宅小区建设项目总用地面积38500.97㎡(57.75亩),总建筑面积96536.26㎡,容积率2.0,建筑密度18.68%,绿地率35.02%,停车位569个。

公示时间:2025年8月13日起(5个工作日)。

根据《中华人民共和国行政许可法》第三十六条及第四十七条之规定,行政许可人、利害关系人有权进行陈述、申辩和要求听证的权利。公示期间如有意见和建议,请以书面形式反馈到永靖县自然资源局(单位需盖公章,个人需署真实姓名及联系方式);申请听证的请在公示期间向我局书面申请。逾期未提出的,视为同意方案及放弃听证权利,我局将依法作出相关行政许可。

联系地址:永靖县刘家峡古城新区山水苑大厦(永靖县自然资源局)

联系电话(传真):0930-8832272


附件:惠安华府住宅小区总平面图.pdf



永靖县自然资源局

2025年8月13日