永靖县回民中学灾后易地新建项目附属幼儿园建设工程(二期)建设工程规划许可证批后公布

来源:永靖县自然资源局 浏览次数: 发布时间:2026-02-02
字号:
收藏

永靖县教育局向我局申请办理永靖县回民中学灾后易地新建项目附属幼儿园建设工程(二期)建设工程规划许可证,我局按程序对申报材料进行了审核并做出予以办理的决定,现依据《中华人民共和国行政许可法》《中华人民共和国城乡规划法》《自然资源领域基层政务公开标准指引》等相关法律规定,对许可证证载内容进行公布:

1、申请单位:永靖县教育局

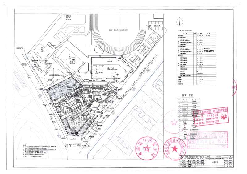
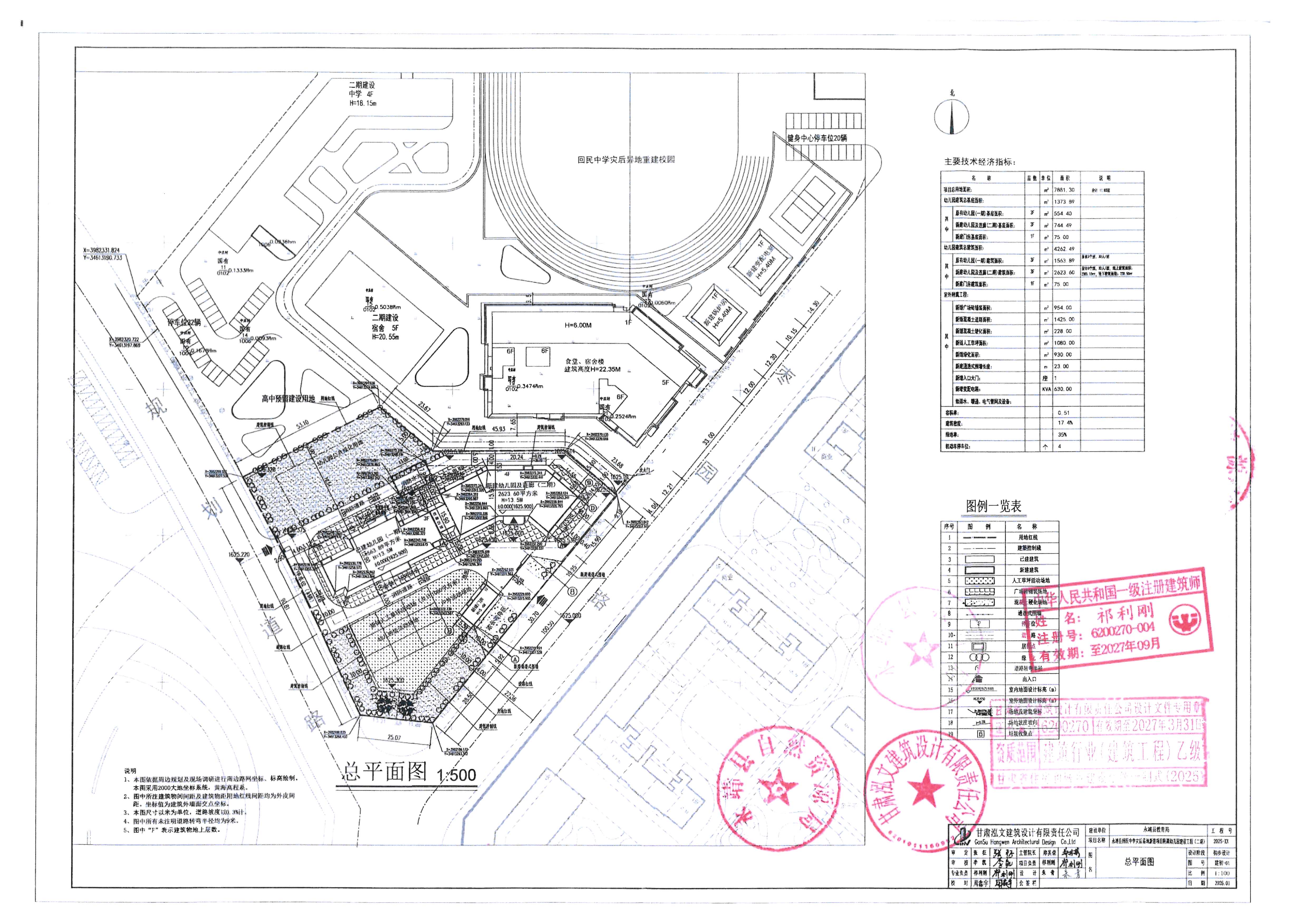
2、项目名称:永靖县回民中学灾后易地新建项目附属幼儿园建设工程(二期)

3、审批事项:建设工程规划许可

4、许可证号:建字第6229232026GG0002697号

5、建设位置:位于永靖县太极镇

6、建设规模:总建筑面积4262.49㎡

7、证照编号:622923202600002

8、发证日期:2026年1月30日



永靖县自然资源局

2026年2月2日