永靖县回民中学灾后易地新建项目附属幼儿园(二期)建设工程修建性详细规划批前公示

来源:永靖县自然资源局 浏览次数: 发布时间:2026-01-22
字号:
收藏

永靖县教育局向我局申报了永靖县回民中学灾后易地新建项目附属幼儿园(二期)建设工程修建性详细规划,我局按程序组织专家评审会进行评审,会后设计单位按专家意见已修改完善,现依据《中华人民共和国城乡规划法》《甘肃省城乡规划条例》《甘肃省建设项目规划许可办法》等相关法律规定,在规划许可之前,将有关情况予以公开公示,接受社会公众监督:

一、项目位置

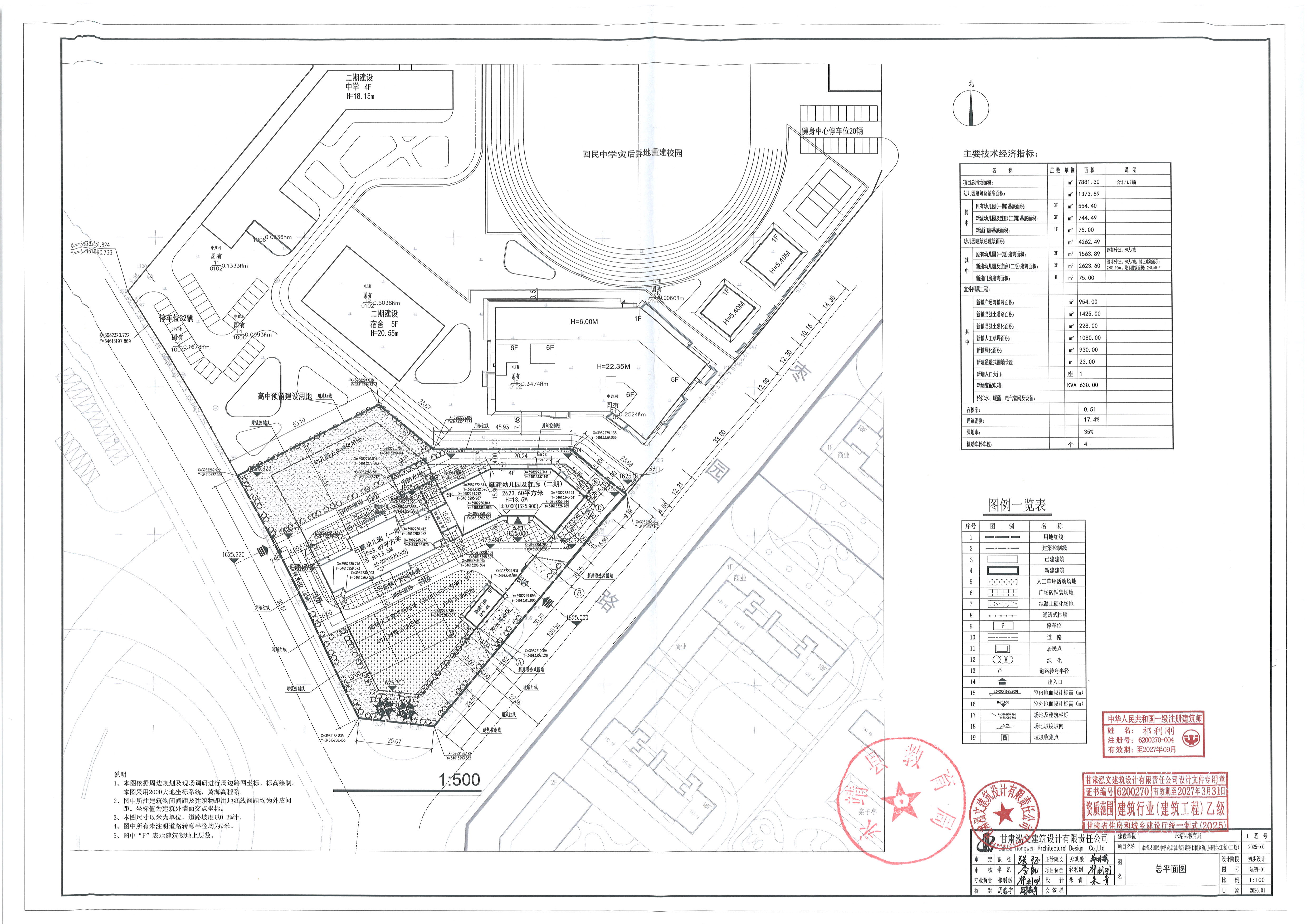
项目位于永靖县太极镇中庄村。

二、规划条件

用地性质:教育用地,规划建设用地面积7881.30㎡,容积率≦1.0,建筑密度≦25% ,绿地率≧30%,建筑高度≦24米。

三、设计方案中的主要内容及指标:

永靖县回民中学灾后易地新建项目附属幼儿园(二期)总用地面积7881.30㎡,总建筑面积4262.49㎡,容积率0.51,建筑密度17.4%,绿地率35%。

公示时间:2026年1月22日起(7日)。

根据《行政许可法》第三十六条及第四十七条之规定,行政许可人、利害关系人有权进行陈述、申辩和要求听证的权利。公示期间如有意见和建议,请以书面形式反馈到永靖县自然资源局(单位需盖公章,个人需署真实姓名及联系方式);申请听证的请在公示期间向我局书面申请。逾期未提出的,视为同意方案及放弃听证权利,我局将依法作出相关行政许可。

联系地址:永靖县刘家峡古城新区山水苑大厦(永靖县自然资源局)

联系电话(传真):0930-8832272



永靖县自然资源局

2026年1月22日